111 homes found in Terrell
For Sale
Gallery
Description
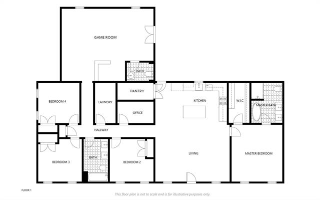
Seller will carry note with 75k down. Embrace the beauty of rural living in this stunning custom board-and-batten farmhouse in Poetry Community, perfectly situated on 2 acres. Designed with both charm and functionality in mind, this home offers four spacious bedrooms, two and a half bathrooms, an office, and a game room—all wrapped in modern comfort and classic country style. Step inside to an open-concept layout with a vaulted ceiling and durable luxury vinyl plank flooring throughout. The heart of the home is the gourmet kitchen, featuring custom cabinetry, a large island, farm sink, granite countertops, Whirlpool stainless steel appliances, and a convenient pot filler above the stove. A massive walk-in pantry adds extra storage and convenience. The split floor plan ensures privacy, with the master suite offering a serene retreat complete with a tiled walk-in shower, soaking tub, dual vanities, and a spacious layout. The game room is perfect for entertaining, equipped with a wet bar and its own half bath. Outdoor living is just as inviting, with covered front and back porches ideal for relaxing or enjoying the view. This property perfectly blends country charm with modern amenities—schedule your tour today and experience the best of both worlds. Game room is extremely versatile - could be used as a second primary bedroom or second living room.
Property details
Residential
List Price $609,900
Reduced $10000
$222 per SQFT
$ HOA Fee
2,753 sqft
4 bedrooms
3 bathrooms
garages
Built in 2025
One stories
2.00 acres
                                               
Additional details
School District: Terrell ISD
Elementary: Burnett
Middle or Junior School: Furlough
Junior High School: Terrell
High School:
MLS Number: 21144180
Subdivision: none
Heating: Central,Electric
Cooling: Central Air,Electric
Flooring: Luxury Vinyl Plank
                                                                                           
                                       
                                       
Direction
From 30 go south of FM 1565
Listed by Cross Power Real Estate, LLC
The database information herein is provided from and copyrighted by the North Texas Real Estate Information Systems, Inc. NTREIS data may not be reproduced or redistributed and is only for people viewing this site. All information provided is deemed reliable but is not guaranteed and should be independently verified. The advertisements herein are merely indications to bid and are not offers to sell which may be accepted. All properties are subject to prior sale or withdrawal. All rights are reserved by copyright. Copyright © NTREIS 2026. All Rights Reserved.
Ishmael Omondi
214-205-4169
800-424-5088
TREC # 0679220
Speak: Swahili,
Enter code: