230 homes found in Celina
For Sale
Gallery
Description
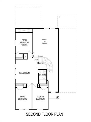
MLS# 20876717 - Built by First Texas Homes - Ready Now! ~ Explore the Caroline 2F Floor Plan – New Home Design Available in Celina, TXThe Caroline 2F offers 5 bedrooms, 3 bathrooms, and 2683 sq. ft. of thoughtfully designed living space that adapts to your needs. From everyday routines to special moments, this layout is built to support how you live — with comfort, functionality, and style in mind. Features like a flexible layout with dedicated flex and dining rooms, a spacious gourmet kitchen with butler’s pantry, and a covered patio—perfect for outdoor living create a flexible foundation for personalization and convenience. Whether you're relaxing, hosting, working from home, or simply enjoying daily life, the Caroline 2F provides the right spaces in the right places. Available in select First Texas Homes communities across DFW, this plan can be tailored with a variety of structural options and design finishes. Explore the Caroline 2F today and discover how First Texas Homes makes it easy to create a home that feels truly yours. Don’t forget, with every First Texas, Gallery Custom, or Harwood Home, you will have the flexibility to customize our plans to fit your needs perfectly. Some features shown on the layout may be optional. Speak with the sales consultant about community plan-specific features.
Property details
Residential
List Price $679,950
Reduced $42779
$253 per SQFT
$600 Annually HOA Fee
2,683 sqft
5 bedrooms
3 bathrooms
2 garages
Built in 2025
Two stories
0.17 acres
                                               
Additional details
School District: Prosper ISD
Elementary: Dan Christie
Middle or Junior School: Moseley
Junior High School: Richland
High School:
MLS Number: 20876717
Subdivision: Sutton Fields
Heating: Central,Zoned
Cooling: Central Air,Zoned
Flooring: Carpet,Ceramic Tile,Wood
                                                                                           
                                       
                                       
Direction
From Hwy 380, Go North on 1385. Go 4 miles and turn right into Sutton Fields. Model will be on the left
Listed by HomesUSA.com
The database information herein is provided from and copyrighted by the North Texas Real Estate Information Systems, Inc. NTREIS data may not be reproduced or redistributed and is only for people viewing this site. All information provided is deemed reliable but is not guaranteed and should be independently verified. The advertisements herein are merely indications to bid and are not offers to sell which may be accepted. All properties are subject to prior sale or withdrawal. All rights are reserved by copyright. Copyright © NTREIS 2025. All Rights Reserved.
Ishmael Omondi
214-205-4169
800-424-5088
TREC # 0679220
Speak: Swahili,
Enter code: